Visualizzazione post con etichetta canale. Mostra tutti i post
Visualizzazione post con etichetta canale. Mostra tutti i post

sabato 28 maggio 2022

La progettazione del somiere

Il somiere è un vero e proprio centro di smistamento dell'aria: a seconda dei segnali che riceve dai comandi dei registri e dai tasti della tastiera provvede a distribuire l'aria alle canne che poggiano su di esso.

La secreta del somiere è mantenuta costantemente in pressione grazie all'aria che arriva dalla manticeria: premendo un determinato tasto della tastiera (o della pedaliera) viene azionato il corrispondente ventilabro: l'aria entra quindi nel canale della nota selezionata e da lì va ad alimentare le canne dei registri precedentemente impostati.

Quello fin qui descritto è, per sommi capi, il funzionamento del somiere a canali per tasto, che è la tipologia più diffusa e che anch'io ho utilizzato per il mio organo a canne.


Il mio organo a canne ha 54 note e 6 registri per cui servono:

  • 54 canali (uno per tasto) e quindi 54 ventilabri
  • 12 stecche di registro (2 per registro, sussistendo la suddivisione tra bassi e soprani)
  • 324 fori totali (uno per ogni canna)

La larghezza di un canale e del corrispondente ventilabro determinano la portata di aria massima che potrà essere consumata dalle canne collegate a quel tasto: solitamente i canali delle note più gravi sono più larghi visto il maggiore consumo di aria.

Lo stesso ragionamento si può applicare, a maggior ragione, alla dimensione del foro di alimentazione delle canne che solitamente aumenta all'aumentare delle dimensioni della canna.

Per la determinazione di questi e di altri parametri costruttivi del somiere, durante la fase di progettazione ho effettuato una comparazione delle misure dei somieri di vari organi storici italiani e stranieri che ho ricavato da relazioni di restauro pubblicate a stampa o su Internet.

Di tutte le relazioni di restauro analizzate quella dell'organo della chiesa di Notre Dame ad Auxonne in Francia ha rappresentato per me la più preziosa e dettagliata fonte di informazioni.

Le prime canne dei registri principali dell'organo sono molto più larghe dei corrispondenti canali e per questo motivo non possono essere posizionate sopra al proprio foro di alimentazione: devono essere posizionate in un altro punto dell'organo e vengono alimentate a distanza grazie a dei trasporti d'aria cioè dei tubi o dei canali che trasportano l'aria dal foro del somiere al piede della canna.


Come si vede dallo schema che propongo qui sopra (vista dall'alto della disposizione delle canne sul somiere) nel caso dei registri di XV, XIX e XXII non sussistono problemi di spazio.

Con il registro di Ottava 4' iniziano i problemi: le prime otto canne non sono posizionate sopra al somiere e sono collegate con dei tubi; le successive dodici poggiano sul somiere ma non sopra al rispettivo canale e quindi anch'esse sono collegate al loro foro di alimentazione attraverso dei trasporti d'aria. Soltanto dal Sol#2 in poi non si rende necessario un trasporto d'aria e le canne posso poggiare direttamente sopra al loro foro di alimentazione, cioè sull'asse del rispettivo canale.

Per il registro di Principale 8' quasi tutte le canne sono troppo larghe e sono quindi collocate o in facciata o in altre zone del mobile dell'organo: soltanto le ultime cinque poggiano direttamente sul proprio foro di alimentazione (da Do#5 a Fa5).

Una volta definite le larghezze dei canali e la posizione delle canne sulla tavola superiore del somiere ho proseguito la progettazione con un programma di CAD 2D utilizzando i dati inseriti e calcolati su un programma di fogli di calcolo, con le dovute rettifiche effettuate in un secondo momento.

I disegni CAD sono stati successivamente utilizzati anche per la progettazione della catenacciatura di collegamento del somiere al manuale.





lunedì 4 ottobre 2021

Come funziona un organo a canne?

Per rispondere in modo rapido a questa domanda non c'è niente di meglio che sfruttare la meravigliosa tavola grafica n. 52 del trattato enciclopedico L'Art du Facteur d'Orgues redatto dal monaco benedettino Dom Bedos de Celles verso la fine del 18° secolo, una vera e propria summa monumentale composta da due tomi e ricca di indicazioni teoriche e pratiche sulla fabbricazione degli organi a canne.

La copia di cui dispongo è la versione tradotta in italiano edita dalla Turris Editrice di Cremona che si intitola appunto L'arte del costruttore di organi.


La tavola in questione rappresenta un organo a canne sezionato dall'alto in basso e visto di lato: cliccando sull'immagine è possibile ingrandirla così da vedere bene i numeri che identificano le varie parti dell'esploso.

A sinistra sono visibili i mantici (13, 14, 15) che all'epoca venivano azionati a mano mentre oggi vengono gonfiati grazie ad un elettroventilatore.

La funzione dei mantici è quella di rifornire lo strumento di una riserva di aria a pressione costante il cui valore deve essere precisamente determinato e fissato in sede di collaudo dello strumento.

Generalmente la pressione dei mantici di un organo (misurata come sovrapressione ΔP rispetto a quella atmosferica esterna) va dai 45 ai 90 millimetri in colonna d'acqua (mmH2O), cioè da 0,004 a 0,009 atm circa: si tratta di una sovra-pressione piuttosto bassa che però, se viene mantenuta costante durante il funzionamento dell'organo, riesce a garantire potenze sonore anche piuttosto elevate.

L'aria in pressione proveniente dai mantici raggiunge il somiere (19) che rappresenta il vero e proprio cuore dello strumento e la cui secreta viene costantemente tenuta in pressione: sopra al somiere sono appoggiate le file di canne (3) che compongono i vari registri.

Le canne rimangono silenziose fino a che l'organista non decida di premere uno o più tasti della tastiera (6) e/o della pedaliera (7).

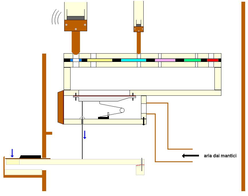
In alto a sinistra nella tavola grafica è rappresentato nel dettaglio il funzionamento del somiere: quando l'organista preme un tasto (C) una leva (o un sistema di più leve) trasmette il movimento al corrispondente ventilabro presente all'interno della secreta (B), trascinandolo di qualche millimetro verso il basso: i ventilabri non sono altro che delle valvole che a seconda della posizione possono consentire o impedire il flusso dell'aria.

Nello stato di riposo ogni ventilabro chiude perfettamente il foro rettangolare del corrispondente canale grazie ad una molla in ottone crudo o in acciaio armonico.

Quando però il ventilabro viene trascinato verso il basso a seguito della pressione di un tasto della tastiera, l'aria in pressione presente all'interno della secreta riesce ad entrare nel corrispondente canale e da lì fino alla canna (o alle canne) e quindi avverrà la produzione di un suono.

Gli organi a canne possono essere monoregistro (soprattutto i più piccoli) oppure avere più registri (questa è solitamente la norma).

Azionando più registri contemporaneamente è possibile far suonare più canne su uno stesso tasto ottenendo variazioni del timbro emesso dallo strumento.